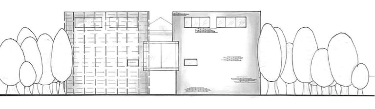
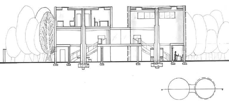
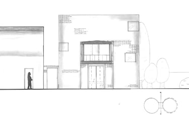
Drawing by Hand
The whole first year of undergrad was focused on hand drawing. Whilst the second design studio module was treated as a transitional module implementing digital technologies in the design process, all final drawings were drawn by hand. This was important as it provided a foundation for my approach to design and helped with the understanding of scale, detail and precision needed in a drawing. Although my final drawings are now curated through digital software, I still design largely by hand in the preliminary stages of design and when experimenting with different concepts and testing ideas.
The briefs for design studio projects I took on in my first year were not what I expected going into the degree. However, when I reflected upon the year, I realised how important the structure of the modules was to understanding how to design and the different variables to take into account when finding opportunities and constraints. But, vitally, how important the relationship between hand drawing and designing is.




Note: Images viewed online may not be to scale
























Designs By Shalin
Showcasing my work in architecture and digital media fields.
Contact me
Shalin.Desai22@gmail.com
+44 7305806569
© 2025. All rights reserved.
